< img height="1" width="1" style="display:none" src="https://www.facebook.com/tr?id=692944559725730&ev=PageView&noscript=1" />

Algeria-Warehouse

Algeria-Warehouse

Country: Algeria

Year: 2022

Algeria-Warehouse
Algerian Pharmaceutical Factory
-- Expanding the factory signifies that the business is thriving
CountryAlgeriaYear2022
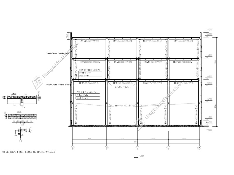
Project Information
ProjectPharmaceutical FactoryDimension35.62*30.99*22m(Three floors)Wind speed120km/h
MaterialH-steelPaintAlykd paintPurlineC purline 180x70x20x2
RoofingEPS sandwich panel 0.4mm+50mm 12kg+0.4mmFloor Galvanized corrugated floor 0.8mmxV720Brick wall height1.2m
DoorRoller-up door 3x4x2mDecoration sheet2.5mm*450mm yellow aluminum alloy sheetContainers19x40HQ

 

Algeria-Warehouse


Algeria-Warehouse


Algeria-Warehouse