– Customized Engineering Solution
| Uruguay Warehouse – Customized Engineering Solution | |||||
| Country | Uruguay | Year | 2024 | ||
| Project Information | |||||
| Project | Logistics Center | Dimension | 70.2mx34mx9m | Wind speed | 31m/s |
| Material | H-steel | Paint | Alkyd paint | Purline | C purline |
| Roofing and wall | V950 50mm PIR sandwich panel | Door | Electricity motorized sectional door | ||
Professional Engineering Collaboration
For this steel warehouse project in Uruguay, the client’s engineering team worked closely with Hengon’s designers. They refined every detail of the structure. This efficient and collaborative process allows designers to spend more time on design.

However, the on-site installation will be smooth and easy. This is the best project model.

Optimized Structural Design for Cost Efficiency
The warehouse adopts a 7m column spacing, allowing our engineers to use C200*70*20*2.0 purlins.
Although the purlins are larger, the overall steel consumption decreases, which lowers total construction costs.

For most industrial buildings, a 7–8m column spacing is the most cost-efficient range.
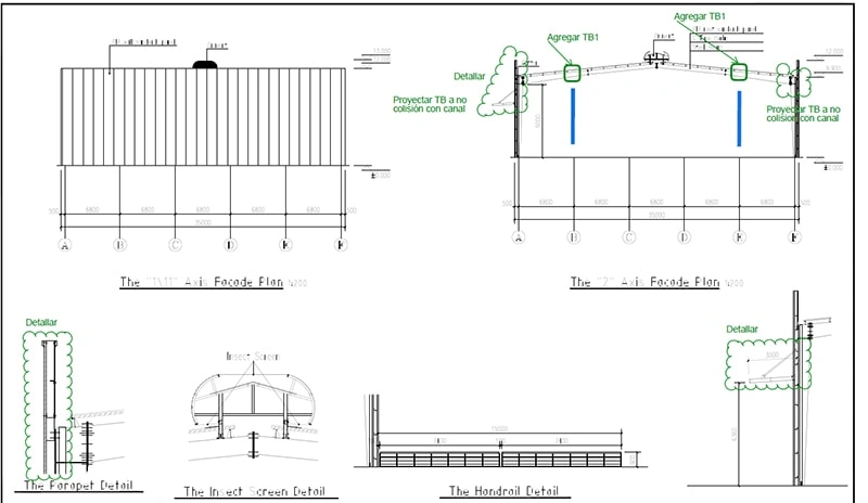
Improved Ventilation Ridge with Better Protection
Based on the client’s recent feedback, this warehouse has a stainless-steel mesh in the ventilation ridge. This mesh keeps birds and animals from entering.

Customized Architectural Appearance
The client asked for 12 sets of decorative front columns. We did several rounds of color checks to match the look they wanted. Their recognition of our attention to detail and professionalism reinforces our commitment to delivering high-quality results.

Reliable Doors & Loading Equipment
The project includes:
Industrial lifting sectional doors from our audited supplier — quality fully guaranteed
Two fixed hydraulic dock levelers (2000×2600×600mm), also sourced from trusted and factory-verified partners
Hengon maintains a 100% on-site audited supply chain. We work only with reliable and skilled manufacturers. We value what our clients value. This means ensuring long-term stability and reducing future problems.