--Own home should always be the best.
This villa followed client's design to manufacture. In the drawing, it' s ASTM Standard, But this client agreed to use Chinese standard, replacing with corresponding or slightly larger specifications.
| Philippines three floors villa --Own home should always be the best. | |||||
| Country | Philippines | Year | 2023 | ||
| Project Information | |||||
| Project | Villa steel structure | Dimension | 29.6m*12.74m*13.9m(Three floors) | Steel standard | Chinese | 
| Material | H-steel | Paint | Epoxy paint | Purline | C purline | 
| Stair | Included | Elevator shaft | Included | Elevator | Included | 
| Floor | Floor decking plate 1mm | Wall | Client built | Containers | 5x40HQ | 
It has three floors, divided into three units. Since this client has two sons, each family has one unit. This is your own home, surely we promised the quality and assistant to build your dream home.



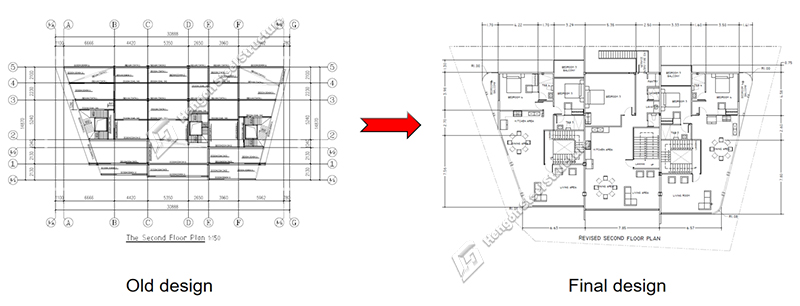
The shipment is imminent, and the client requested a change in the structure to make the floor curved. Given the urgency, We adjusted the production schedule to prioritize the rectification of this steel structure viilla project and ensure on-time delivery.

We have also procured two residential elevators for this client, Our professional procurement team rigorously assessed the suppliers' qualifications and product quality to select a suitable manufacturer, while ensuring that the pricing remains competitive in the market.

Delivery

During installation, we swiftly addressed the client’s questions. This client is very pleased with our product quality and service and occasionally sent back photos of the installation progress.
