--Focusing on the local hot weather, heavy rainfall, and high corrosion.
| Project Cases | |||||
| Country | Iloilo Philippines | Year | 2024 | ||
| Project Information | |||||
| Project | Steel Structure Warehouse | Dimension | 39.4mx22.4mx8m | Wind speed | 250km/h | 
| Material | H-steel | Paint | Alykd paint | Purline | C purline 180mmx70mmx20mmx2mm | 
| Roofing | corrugated steel roofing sheets V840 0.5mm,EPE foam 12mm with supporting stainless wire | Brick height | Full brick wall | ||
| Door | Galvanized steel door | Gutter | SS304 1.5mm | Containers | 2x40HQ | 
| Project Pictures | |||||
|  | |||||
Due to the hot and rainy climate in the Philippines, we recommend client to add 12mm EPE foam insulation for roof. And there is 1.2mm 304 stainless wire net to support, then it's more beautiful and durable after installation


We've also designed a large unfold 1.22m wide 304 stainless steel gutter to resist heavy rainfall. And as the high corrosion aside coastal area , client required 1.5mm thickness.

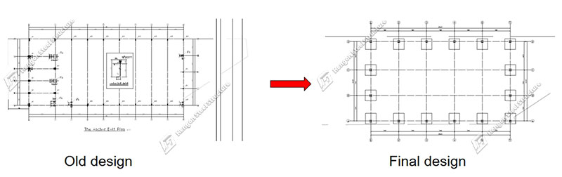
Initially, the client provided only a rough sketch. After detailed discussions with our project consultant, our engineering team .

Six months later, this client sent a new layout and requested an updated design, which was entirely different from the original one. We revised the design accordingly, and due to lower local labor costs, we also changed the walls to be built with local brick.

Finally, we signed the contract with a 30-day delivery guarantee. The client requested early shipment of the anchor bolts for foundation work in advance, and we Hengguan(Steel Structure Warehouse Manufacturer) take the delivery cost.

Last but not least, The client was very pleased to sign the contract while steel prices were very low. We are also excited to establish cooperation with him and look forward to longer collaboration. We will ensure quality and service, and keep our prices competitive.
More information of this steel structure warehouse project and our company, feel free to contact with us.