--Establishing collaboration, Lifetime Friends
In 2024, after the pandemic, customers finally came to China. They mentioned the Container House we previously provided, praising the quality and saying they are still in use. They also discussed the possibility of future collaborations on projects such as gas stations and supporting public facilities.
 
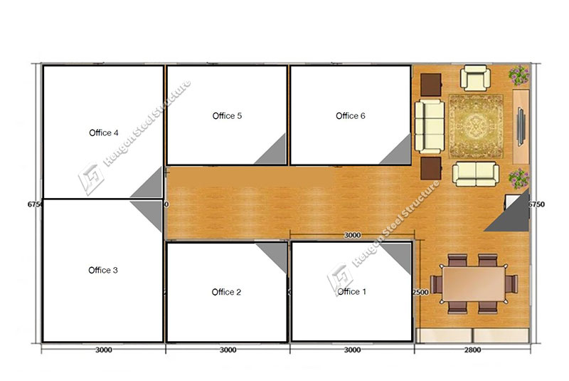
In 2019, this client ordered 3x40ft assembled container house , with total area of 78m² to be office. They also ordered five sets prefab guard house, size:1.5mx1.5m.
| Bahrain Flat Pack Container House --Establishing collaboration, Lifetime Friends | |||||
| Country | Bahrain | Year | 2019 | ||
| Project Information | |||||
| Project | 3x40ft flat pack container office+prefab guard house&hut | Dimension | 11.8mx6.75mxH3+1.5mx1.5mxH2.4mx5 | Structure | Galvanized | 
| Wall | EPS sandwich panel 50&75mm | Rooms | Office: 6 partitions Hut: 1 partition | Floor | PVC Self-adhesive flooring | 
| Electricity | Prefabricated | Door | Steel Security Door 930*2000 | Containers | 1x40HQ | 
Initially, this client saw our product 3D pic in our alibaba store and wanted to use it as office. After discussing the details and understanding the product, this client sent us a rough sketch.

Our engineering team then proceeded with the design. After received the drawing, they were very satisfied, not only with our design but also with the pricing. They immediately placed the order.

20 days later, we delivered the products as scheduled.

After receiving the products, the client sent us photos of the unloading at the site.

Customer Feedback Images
