-Expanding the factory signifies that the business is thriving
During the pandemic, this client's pharmaceutical products were rapidly developing and urgently needed to scale up production, so they planned to build a new workshop.
| Algerian Pharmaceutical Factory -- Expanding the factory signifies that the business is thriving | |||||
| Country | Algeria | Year | 2022 | ||
| Project Information | |||||
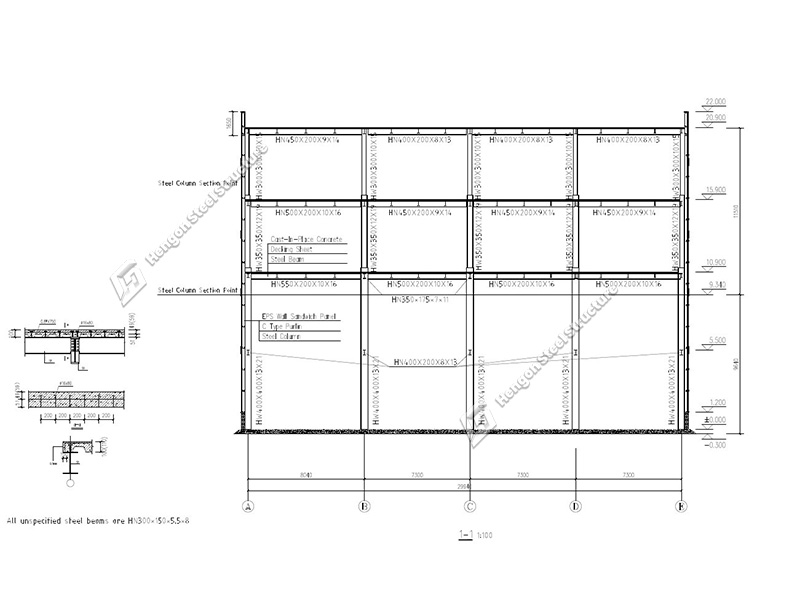
| Project | Steel Structure Pharmaceutical Factory | Dimension | 35.62*30.99*22m(Three floors) | Wind speed | 120km/h | 
| Material | H-steel | Paint | Alykd paint | Purline | C purline 180x70x20x2 | 
| Roofing | EPS sandwich panel 0.4mm+50mm 12kg+0.4mm | Floor | Galvanized corrugated floor 0.8mmxV720 | Brick wall height | 1.2m | 
| Door | Roller-up door 3x4x2m | Decoration sheet | 2.5mm*450mm yellow aluminum alloy sheet | Containers | 19x40HQ | 
The first floor is H10.9m and mainly serves as a production workshop with tall equipment. The second and third floors are for storage and manual operation areas.

This client is particularly focused on the building's aesthetics and requests brown aluminum alloy divider strips at each floor's separation points. We found a specialized supplier to customize it for them.

 
From the beginning, this client provided preliminary drawings, allowing us to confirm a few simple issues for quoting and design, which greatly improved communication efficiency.

After two years, in 2024, this client came to China to discuss their new steel structure pharmaceutical factory project with us face to face and brought local snacks for us. He told us that the pharmaceutical industry in Algeria is experiencing an upward trend. We appreciated their thoughtfulness and trust, and we will continue to meet their expectations by providing better quality and service.
